14 Florence Street Development Application

A history of notices sent to owners and residents
Post Reply
TheMews
Site Admin
Posts: 2768
Joined: Tue Jan 06, 2009 5:53 pm

14 Florence Street Development Application

Post by TheMews »

WE NEED YOUR HELP!!

We have been made aware of a development application to construct apartments and town houses at 14 Florence Street.

The developer is requesting that many of the Residential Design Codes be ignored to allow more/larger units to be constructed so they can maximise their profits.

Unfortunately if this development was to be approved it would have a significant negative impact to the neighbouring properties.

Please let us know you support us by:
  • Reply to our email and let us know you support our objections (a simple "yes" is all we need).
  • Go to the City of Vincent website and enter your objection on the website (please let us know if you have done this).
  • Signing the attached form and scanning/emailing or posting this to us (just print and sign the first page).

CoV Feedback Page:
https://www.vincent.wa.gov.au/consultat ... nce-street
- Serial Number is : 5.2017.453.1
- Contact Officer is : EMILY ANDREWS


The developer is asking for the following:
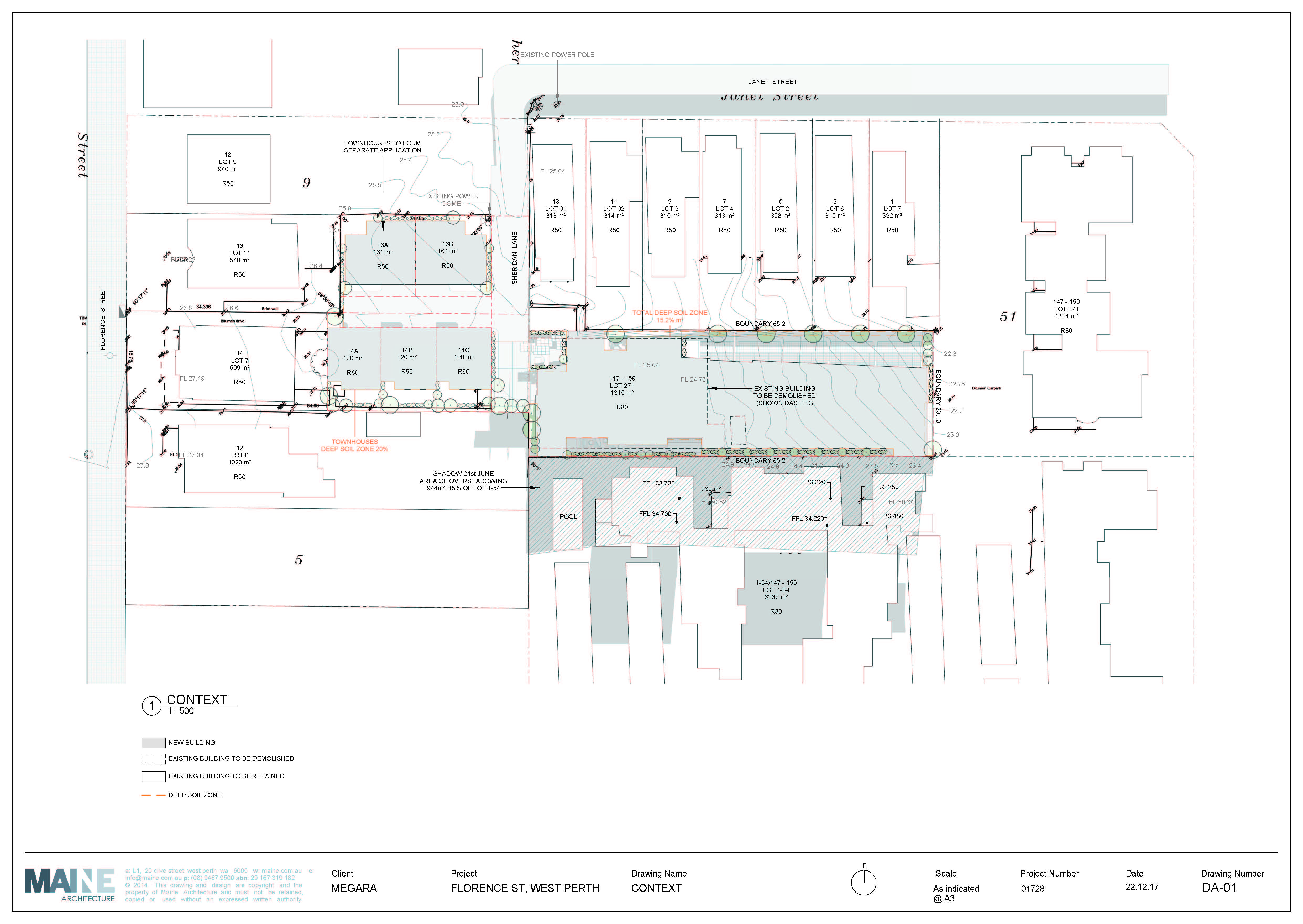
Building Size - Plot ratio of 1.13 where the RDC dictates 1.0. (13% more buildings and less open space than allowed)
Building Height - 12.1m where the RDC dictates 7m. (72% more height than allowed)
Lot Boundary Setback - 0m where the RDC dictates 4m. (Building on the boundary with absolutely no spacing at all)
Landscaping - 12% where the RDC dictates 15%. (25% less gardens than the minimum requirement)
Visual Privacy - Cone of vision 1.4 metres where the RDC dictates 6m. (77% more visibility from the development into our units than permitted - this is a massive invasion of privacy)
Utilities and Facilities - Storage areas less than 4sqm where the RDC dictates 4sqm. (less than the minimum storage requirements - this will likely lead to items being stored on balconies and open areas which brings down the look of the property and the values of the surrounding properties)
Attachments
Florence-S-14-(04)-C.pdf
(43.84 KiB) Downloaded 1867 times
Aerial picture of the area showing the 2 blocks that make up 14 Florence Street
Aerial picture of the area showing the 2 blocks that make up 14 Florence Street
TheMews
Site Admin
Posts: 2768
Joined: Tue Jan 06, 2009 5:53 pm

Re: 14 Florence Street Development

Post by TheMews »

Letter from City of Vincent:

18 January 2018

The Proprietors of Strata Plan 5629
C/- Exclusive Strata Management
PO Box 779
VICTORIA PARK WA 6979

Dear Sir/Madam,

NO. 14 (LOT: 271 DIP: 222985, LOT: 7 D/P: 2360) FLORENCE STREET WEST PERTH

The City of Vincent recognises that what is happening in your neighbourhood is important to you. When your neighbours submit plans to develop or in some way change their property we understand that those plans may affect you. With this in mind, the City ensures that the local community is given the opportunity to find out about these proposals and to let us know what you think - this helps your Council in its decision-making.

We are writing to you today to let you know that we have received an application for planning approval at the above address and we Invite you to comment on the proposal:

Applicant: Megara
Proposal: Fifteen Multiple Dwellings
Consultation Period: 19 January 2018 - 9 February 2018

As the application requires the Council to exercise discretion in accordance with the City's Town Planning Scheme No. 1, Residential Design Codes and/or associated Policies we are seeking input from nearby or adjoining landowners and residents. The planning application, plans and documentation for this proposal are available for viewing at the following locations:
1. On the City's website www.Vincent.wa.gov.au under 'Community Consultation';
2. At the Administration and Civic Centre, 244 Vincent Street (cnr Loftus Street), Leederville between 8.00am and 5.00pm, Monday to Friday (excluding public holidays); and
3. At the Library and Local History Centre during opening hours.
(Please note in order to comply with Copyright legislation, plans are not able to be photocopied or sent to you).

Community Consultation Guidelines:

To assist you in making a submission, we have prepared the Community Consultation Submission Guidelines which details the consultation process and how to have your say. The Guidelines can be found at www.vincent.wa.gov.au.
If you wish to make a submission, please complete the enclosed Community Consultation Submission Form and return it to the City by the closing date.
Should you require any further information, assistance or wish to discuss this application, please contact Urban Planner, Emily Andrews on 9273 6033 or email mail@vincent.wa.gov.au.

Thank you for taking the time to provide us with your comments on this planning application.
Yours sincerely
Emily Andrews
URBAN PLANNER
APPROVAL SERVICES
TheMews
Site Admin
Posts: 2768
Joined: Tue Jan 06, 2009 5:53 pm

Re: 14 Florence Street Development

Post by TheMews »

DETAILS Of ASPECTS REQUIRING LOCAL AUTHORITY DISCRETION:

Planning Element: Building Size
Applicable Rule: Residential Design Codes Clause 6.1.1
Deemed-to-comply: Plot ration of 1.0
Proposed: 1.13

Design Principles: P1 development of the building Is at a bulk Plot ratro of 1.13 and scale indicated in the local planning framework and is consistent with the existing or future desired built form of the locality.


Planning Element: Building Height
Applicable Rule: Policy No.7.1.1 - Built Form and Residential Design Codes Clause 6.1.2
Deemed-to-comply: Building Height Permits 2 Storey; Maximum permitted concealed height 7m
Proposed: 3 Storys; 10.9m to top of 3rd storey; and 12.1m to top of stair well.

Design Principles:
Built Form
P5.6.1 Buildings which respond and contribute to neighbourhood context and streetscape character, and do not overwhelm or dominate existing development.
P5.6.2 Design which is complimentary to existing developments.
P5.6.3 Development that considers and responds to the natural features of the site and requires minimal excavation/fill.
P5.6.4 Design which minimises overlooking and overshadowing.
P5.6.5 Development which preserves and enhances the visual character of the existing streetscape by considering bulk and scale.

PS.6.6 The City may approve development which exceeds the maximum height stated in table 5 where it is stipulated in an approved Local Development Plan, Activity Centre Plan or Structure Plan and addresses Design Principles in PS.6.1-PS.6.5.

R-Codes:
P2 Building height that creates no adverse impact on the amenity of adjoining properties or the streetscape, including road reserves and public open space reserves; and where appropriate maintains:
• Adequate access to direct sun into buildings and appurtenant open spaces;
• Adequate daylight to major openings into habitable rooms; and
• Access to views of significance.
• Buildings present a human scale for pedestrians;
• Building facades designed to reduce the perception of height through design measures; and
• Podium style development is provided where appropriate.


Planning Element: Lot Boundary Setback
Applicable Rule: Policy No. 7.1.1 - Built Form and Residential Design Codes Clause 6.1.4
Deemed-to-comply: 4m setback from the lot boundaries
Proposed:
Northern Boundary; Ground Floor setback nil to 3.02m
Southern Boundary; Ground Floor nil to 1.2m; First Floor setback nil to 3.0m; Second Floor setback 2.8m to 4.8m.

East (rear) Boundary; Ground Floor setback 1.3m First and Second Floors setback 1.0m
Design Principles:
Built Form
P5.3.1 Development which preserves and enhances the visual character of the existing streetscape by considering building setbacks.

R-Codes:
P4.1 Buildings set back from lot boundaries so as to:
• Ensure adequate daylight, direct sun and ventilation for buildings and the open space associated with them;
• Moderate the visual impact of building bulk on a neighbouring property;
• Ensure access to daylight and direct sun for adjoining properties; and
• Assist with the protection of privacy between adjoining properties.


Planning Element: Landscaping
Applicable Rule: Policy No. 7.1.1- Built Form and Residential Design Codes Clause 6.3.2
Deemed-to-comply:15% of site area to be deep soil zone
Proposed: 12.3%

Design Principles:
Built Form
P5.14.1 Landscaping is to be designed to reduce the impact of development on adjoining residential zones and public spaces.
P5.14.2 Landscaping should provide increased urban air quality, tree and vegetation coverage and sense of open space between buildings.
P5.14.3 The integration of sustainable landscape design with building creating a greater landscaping amenity for residents and occupants and the community.
P5.14.4 The provision of landscaping that will make an effective and demonstrated contribution to the City’s green canopy to reduce the impact of urban heat island effect.
P5.14.5 Landscaping design which facilitates the retention of existing vegetation and deep soil zones.
P5.14.6 Landscaping at the rear of the property should not negatively impact on the use and activation of a right of way.
P5.14.7 Open air car parks should be appropriately landscaped to provide adequate shading and reduce the impact on adjoining properties.
R-Codes
P2 The space around the building is designed to allow for planting. Landscaping of the site is to be undertaken with appropriate planting, paving and other landscaping that:
• Meets the projected needs of the residents;
• Enhances security and safety for residents; and
• Contributes to the streetscape.


Planning Element: Visual Privacy
Applicable Rule: Residential Design Codes Clause 6.4.1
Deemed-to-comply:
Living rooms require 4.5m cone of vision
Terraces require 6.0m cone of vision (setback)
Proposed:
Unit 5 living (facing north) setback 4.4m in lieu of 4.5m from northern boundary.
Unit 15 living (facing north) setback 2.2m in lieu of 4.5m to eastern boundary.
Unit 15 terrace (facing north and south) setback 1.4m in lieu of 6m to eastern boundary.
Unit 15 terrace (facing east) setback 1.4m in lieu of 6m from eastern boundary.

Design Principles:
P1.1 Minimal direct overlooking of active habitable spaces and outdoor living areas of adjacent dwellings achieved through:
• Building layout and location;
• Design of major openings;
• Landscape screening of outdoor active habitable spaces; and/or
• Location of screening devices.
P1.2 Maximum visual privacy to side and rear boundaries through measures such as:
• Offsetting the location of ground and first floor windows so that viewing is oblique rather than direct;
• Building to boundary where appropriate;
• Setting back the first floor from the side boundary;
• Providing higher or opaque and fixed windows; and/or Screen devices (including landscaping, fencing, obscure glazing, timber screens, external blinds, window hoods and shutters).


Planning Element: Utilities and facilities
Applicable Rule: Residential Design Codes Clause 6.4.6
Deemed-to-comply: Storage areas of 4sqm with a minimum dimension of 1.5m
Proposed:
Unit 2 – Unit 9 area of 3.6sqm
Unit 10 area of 3.45sqm
Unit 11 minimum dimension of 1.4m and an area of 3.92sqm
Unit 14 and 15 minimum dimension of 1.4m

Design Principles:
P6 External location of storeroom, rubbish collection/bin area, and clothes drying areas where these are:
• Convenient for residents;
• Rubbish collection areas which can be accessed by service vehicles;
• Screened from view; and
• Able to be secured and managed
TheMews
Site Admin
Posts: 2768
Joined: Tue Jan 06, 2009 5:53 pm

Re: 14 Florence Street Development

Post by TheMews »

Complete plans available here:

/misc/docs/20180123_14Florence_Development_Plans.pdf

Some of the pages have been extracted below for reference:
Attachments
14_Florence_Plans_Page_01.jpg
14_Florence_Plans_Page_03.jpg
14_Florence_Plans_Page_07.jpg
TheMews
Site Admin
Posts: 2768
Joined: Tue Jan 06, 2009 5:53 pm

Re: 14 Florence Street Development

Post by TheMews »

The City of Vincent has competed their recommendations to the Development Assessment Panel.

The meeting is scheduled for 9:00 am on Thursday the 8th of March.

The Agenda for this meeting is available here:
/misc/docs/20180308_DAP_Agenda.pdf

The CoV Recommendations are as follows:
Officer Recommendation:

That the Metro West Joint Development Assessment Panel resolves to:

Refuse: DAP Application reference DAP/17/01343 and accompanying plans DA-03 Site Plan, DA-05 Level 01 Plan, DA-06 Level 02 Plan, DA-07 Roof Terrace Plan, DA-08 Solar Studies, DA-09 Elevations, DA-10 Elevations, DA-16 Landscape Plan, DA-17 Landscape Plan, in accordance with Clause 68 of the Planning and Development (Local Planning Schemes) Regulations 2015 and the provisions of the Clause of the City of Vincent Town Planning Scheme No. 1, for to the following reasons:

Reasons

1. Having regard to clause 67(b) and 67(m) of the Planning and Development (Local Planning Scheme) Regulations 2015 the proposed development is inconsistent with the City of Vincent’s draft Local Planning Scheme No. 2, which will apply a residential density code of R50 to the land and classifies Multiple Dwellings as being not permitted in this location. The proposed land use in the context of the design being considered will have a significant adverse effect on the inhabitants of the locality and is inconsistent with the future development pattern intended for the locality.

2. The development will affect the discontinuance of a Non-conforming use however the Multiple Dwellings are considered more detrimental to the locality than the exiting non-conforming use as the proposal is inconsistent with the existing established development on adjoining land and will be out of character with the locality by way of height, bulk and scale.

3. Building size – The bulk and scale of the development is such that it is not indicated in the local planning framework and is not consistent with the future desired built form of the locality. The development does not comply with the Plot Ratio requirements of the current density and is not considered to
respond to the future R50 character identified for the site.

4. Building Height - The building height creates an adverse impact on the amenity of the adjoining properties to the north and the Janet Street streetscape. The height is inconsistent with the City’s Policy 7.1.1 Built Form which identifies this as a two storey height area, the increased height and reduced setbacks results in unnecessary overshadowing to the adjoining properties particularly the outdoor living areas and swimming pool.

5. Lot boundary setbacks – The two storey boundary wall on the eastern side and the 1.5 metre to 3 metre building setback proposed to the southern boundary does not moderate the visual impact of the building bulk on the private open space areas of this neighbouring property and the 1.5 metres to 6 metres setback to the northern boundary does not moderate the visual impact of the building bulk created by the three storey plus roof terrace development on the outdoor living areas of the properties to the north.

6. Design of car parking spaces – Visitors parking spaces are not located so as to be conveniently accessed.

7. Visual privacy – The development results in direct overlooking of active habitable spaces of the Janet Street properties to the north from major openings to bedrooms, living areas and the roof terrace. Screening to comply with the Visual Privacy requirements on level one, level two and the roof terrace would likely add to the perceived bulk of the development and would reduce the outlook for the units.

8. The units have not been suitably designed to provide functional and a high standard of internal amenity in accordance with Draft State Planning Policy 7.3 Residential Design Codes Guidance for multiple dwelling and mixed use development with minimal windows providing limited outlook and light into the habitable spaces of the units. Where windows have been provided these are non-compliant with the Visual Privacy requirements and any screening required would significantly impact on the amenity of the dwellings.
TheMews
Site Admin
Posts: 2768
Joined: Tue Jan 06, 2009 5:53 pm

Re: 14 Florence Street Development

Post by TheMews »

2018-04-08

The JDAP rejected the application unanimously.

They also noted that there was a lack of community engagement from the developer.
TheMews
Site Admin
Posts: 2768
Joined: Tue Jan 06, 2009 5:53 pm

Re: 14 Florence Street Development

Post by TheMews »

2018-04-12

The Developer has applied to the SAT (State Administrative Tribunal) to appeal the decision.

The SAT number is DR 73/2018 and the respondent is the JDAP.
Dear Sir/Madam,


RE: NO. 14 (LOTS 7 AND Y271) FLORENCE STREET WEST PERTH, PROPOSED FIFTEEN (15) MULTIPLE DWELLINGS DETERMINED BY THE JOINT DEVELOPMENT ASSESSMENT PANEL (DAP/17/01343) – APPLICATION FOR REVIEW OF DECISION TO THE STATE ADMINISTRATIVE TRIBUNAL

I refer to the Joint Development Assessment Panel (JDAP) decision on 8 March 2018 to refuse the application for 15 Multiple Dwellings at the above mentioned address.

The applicant has lodged a review of the decision made by the JDAP to the State Administrative Tribunal (SAT). As the decision marker, the JDAP will be the respondent in this matter, and the City has been invited to participate in the SAT review proceedings.

Information about the SAT process and proceedings can be found on the SAT website at www.sat.justice.wa.gov.au. The proceedings are limited to an applicant or respondent, and there is no third-party appeal right in Western Australia. There are however instances where third parties, be it adjoining land owners or community representatives, can be involved in mediation at the invitation of the SAT. Information in relation to this can be obtained at this link: http://www.sat.justice.wa.gov.au/_files ... atters.pdf

At this stage the matter (DR73/2018) is scheduled for a Directions Hearing on 13 April 2018. Given the limited notice provided to the City in relation to the SAT timeframes, the City was unable to inform you any earlier.

Following the Directions Hearing, the matter will be scheduled for Mediation, in which the City has been invited to attend. During the Mediation process, the City will negotiate with the SAT to invite a limited number of community representatives to be present.

Should Mediation result in a reconsideration of the application by the JDAP, the City will request that the timeframes allow for the advertising of amended plans. If the timing does not allow for formal advertising, the City will make these plans available for viewing.

Should you have any further queries relating to the above matter please do not hesitate to contact Emily Andrews on 9273 6033 or via email at emily.andrews@vincent.wa.gov.au.

Yours sincerely

Emily Andrews
URBAN PLANNER
TheMews
Site Admin
Posts: 2768
Joined: Tue Jan 06, 2009 5:53 pm

Re: 14 Florence Street Development

Post by TheMews »

2018-04-30

A directions hearing has been held and the next hearing has been set for Tuesday May 8th.

The CoV has requested that residents be invited to present at the hearing and we are currently having discussions with other community member to plan our response.
TheMews
Site Admin
Posts: 2768
Joined: Tue Jan 06, 2009 5:53 pm

Re: 14 Florence Street Development

Post by TheMews »

We have just been advised by the CoV that the next hearing has been postponed and a new date will be scheduled shortly.
TheMews
Site Admin
Posts: 2768
Joined: Tue Jan 06, 2009 5:53 pm

Re: 14 Florence Street Development

Post by TheMews »

We have been advised the hearing has been rescheduled for Wednesday the 16th of May.
Post Reply