Installation of security network

Planned/Completed Projects, Recommended Contractors
Post Reply
TheMews
Site Admin
Posts: 2761
Joined: Tue Jan 06, 2009 5:53 pm

Installation of security network

Post by TheMews »

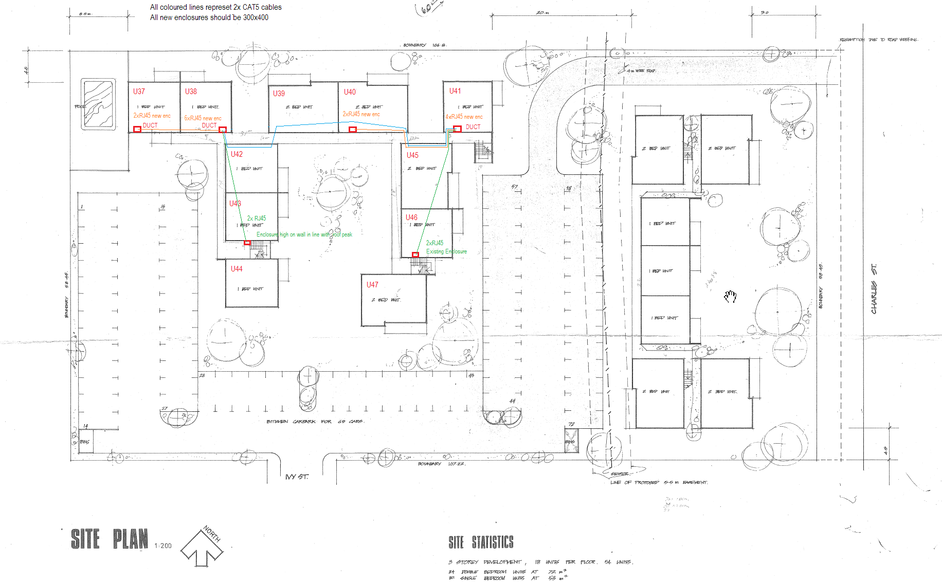
As part of continuing efforts to better secure the complex works will start shortly to install a security network in 60% of the building.

This network will allow security cameras and other security devices to be installed within the complex.

Further information on security improvements is available here:
/viewtopic.php?t=960

Total cost: $3500.00
TheMews
Site Admin
Posts: 2761
Joined: Tue Jan 06, 2009 5:53 pm

Re: Installation of security network

Post by TheMews »

Network Diagram:
Attachments
TheMews_Plans_SecurityNetwork_Rear.png
TheMews
Site Admin
Posts: 2761
Joined: Tue Jan 06, 2009 5:53 pm

Re: Installation of security network

Post by TheMews »

This work has been completed
Post Reply